【募集終了】郡上八幡ー小学校前
明るい一戸建 -住宅-
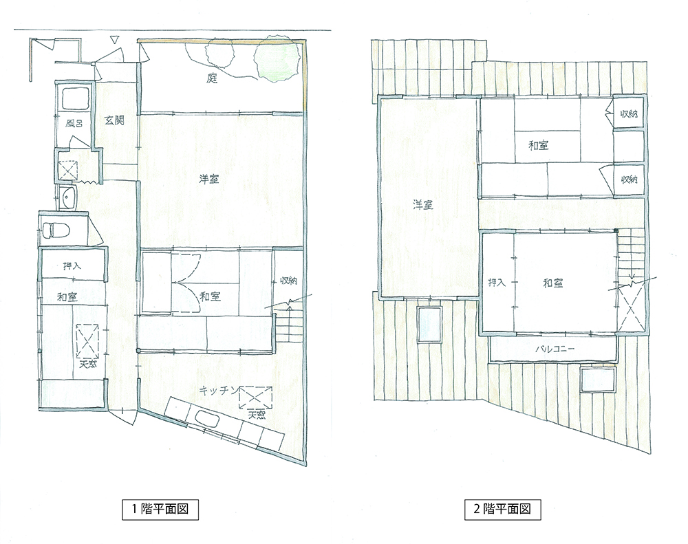
小学校前の町家の一戸建です。なにより特徴があるのが、玄関横に、小さな坪庭があることです。車通りが少ないため、静かな立地です。ただし、小学校の前、特にプールの前なので、夏は賑やかです。でも、そのおかげで北向きの窓からも十分な光が入り、とても明るい建物です。中の荷物はすべて撤去済みです。屋根の塗装や水回りの補修が必要ですが、その他の状態は比較的良好です。ぜひ現地を見て、風の通りや明るさを体感ください。







明るい一戸建 -住宅-
小学校前の町家の一戸建です。なにより特徴があるのが、玄関横に、小さな坪庭があることです。車通りが少ないため、静かな立地です。ただし、小学校の前、特にプールの前なので、夏は賑やかです。でも、そのおかげで北向きの窓からも十分な光が入り、とても明るい建物です。中の荷物はすべて撤去済みです。屋根の塗装や水回りの補修が必要ですが、その他の状態は比較的良好です。ぜひ現地を見て、風の通りや明るさを体感ください。
